corsaben58
Member
Registered: 13th Oct 11
Location: Luton
User status: Offline
|
got a 1.0 and put a c20xe engine in
im trying to bridge the fuel relays which wires from the left one go to the right ones 
also on the ecu wiring i have 3 blue/red how do i tell which ones go where
any help much appriceated
|
Mase
Premium Member
Registered: 16th Sep 01
Location: Derbyshire
User status: Offline
|
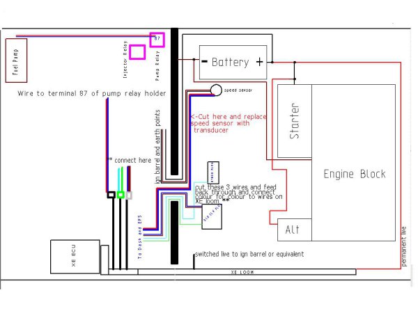
No idea where I got this from, but I found this diagram on my computer the other day... Not by me, so no idea how accurate it is, but I believe its 1.0 to 2.0 XE...

Mase
|
corsa-vxr
Member
Registered: 15th Apr 11
Location: ayr
User status: Offline
|
http://www.corsasport.co.uk/board/viewthread.php?tid=611430
everything u need is in here
|
corsaben58
Member
Registered: 13th Oct 11
Location: Luton
User status: Offline
|
i know but there is a couple of wires that are confusing me :\
|
corsa-vxr
Member
Registered: 15th Apr 11
Location: ayr
User status: Offline
|
As in?how far have u wird it shud be plug and play bar the tapping into the relay
|